土地
22651 平方英呎
(2,104平方米)
無
2025年11月10日
已上市 198 天
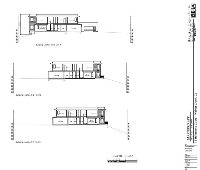
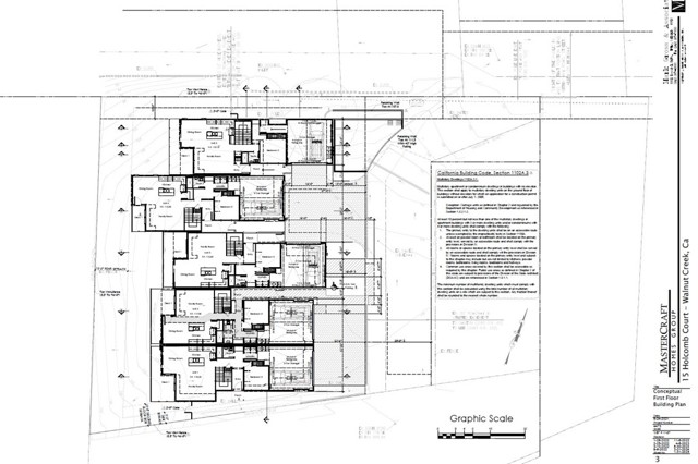
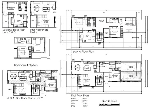
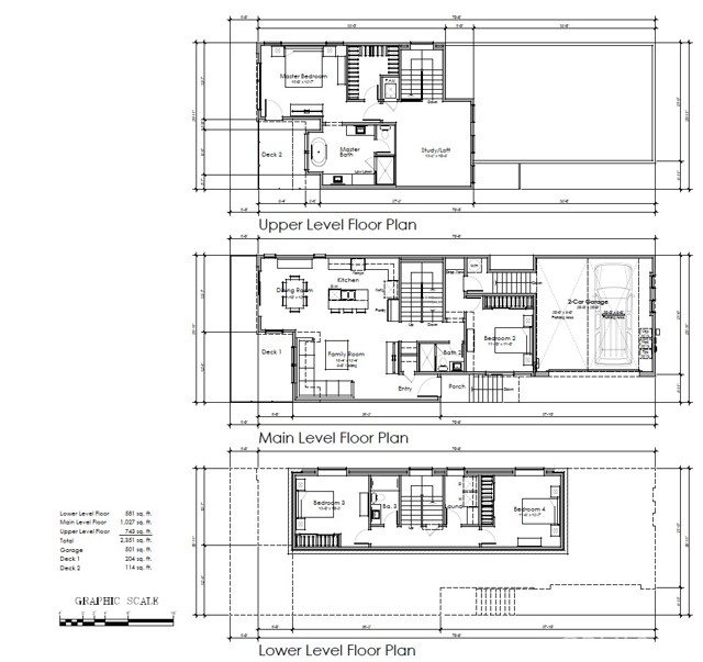
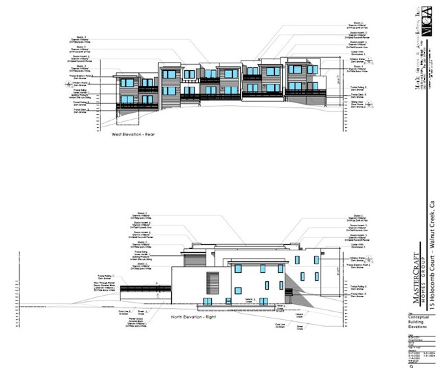
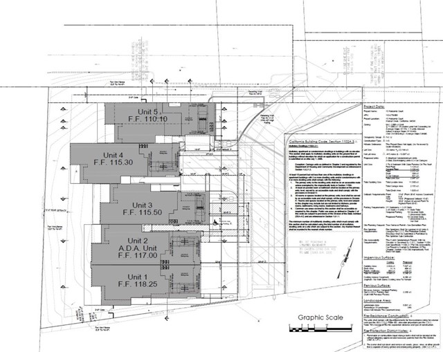
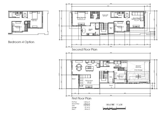
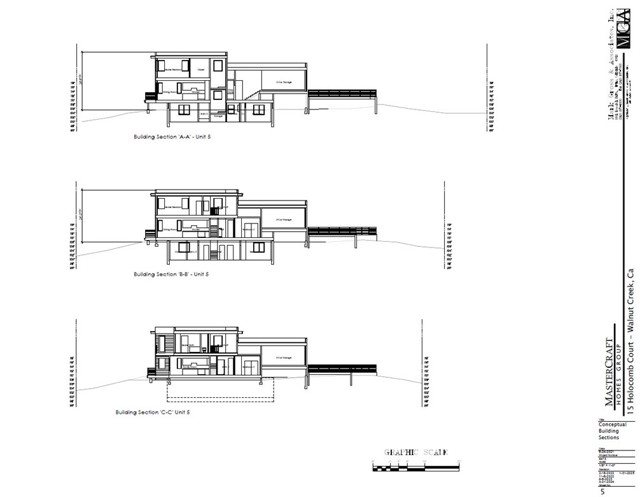
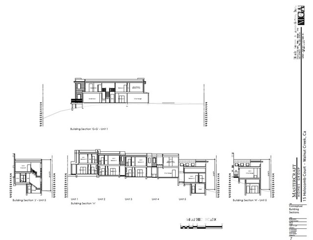
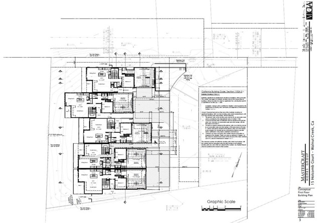
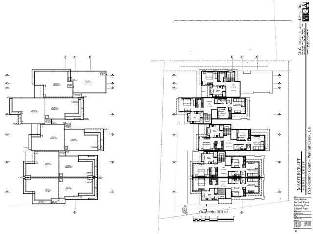
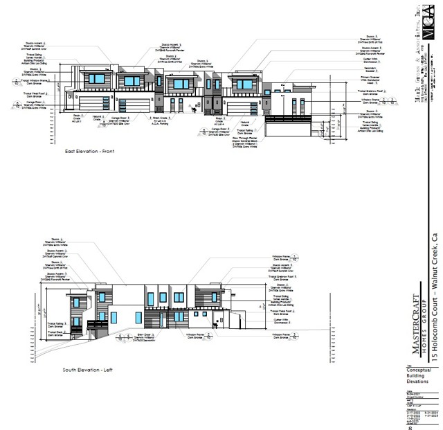
This residential lot has preliminary approved for 5 unit luxury townhomes with the city of Walnut Creek. The included pictures is a rendering of the project and a sample of the preliminary approved plans The project has excellent views to the north from all units.
中文描述選擇基本情況, 幫您快速計算房貸
除了房屋基本信息以外,CCHP.COM還可以為您提供該房屋的學區資訊,周邊生活資訊,歷史成交記錄,以及計算貸款每月還款額等功能。 建議您在CCHP.COM右上角點擊註冊,成功註冊後您可以根據您的搜房標準,設置“同類型新房上市郵件即刻提醒“業務,及時獲得您所關注房屋的第一手資訊。 这套房子(地址:15 Holcomb Walnut Creek, CA 94596)是否是您想要的?是否想要預約看房?如果需要,請聯繫我們,讓我們專精該區域的地產經紀人幫助您輕鬆找到您心儀的房子。