獨立屋
3060平方英呎
(284平方米)
75359 平方英呎
(7,001平方米)
1975 年
無
1
22 停車位
2025年09月18日
已上市 80 天
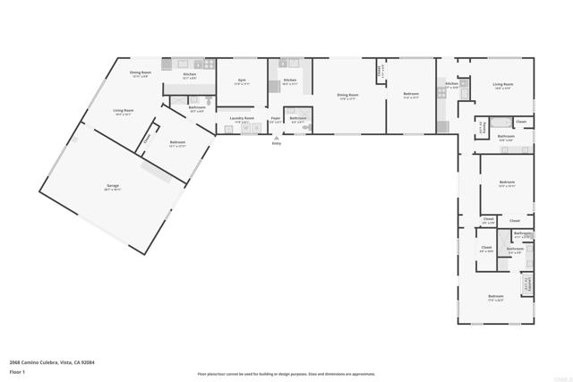
Spectacular panoramic OCEAN and mountain views await you from this single story remodeled home on 1.73 acres! Tastefully sectioned into 3 separate living units, each with an updated kitchen, new appliances, A/C, ocean views and own entrances, perfect for multigenerational living or rental income. Enjoy endless sweeping views from every room. Features include updated LED lighting throughout, whole house water filtration system, owned solar and solar attic fan, upgraded electrical system, 2 new Bosch electric 40 gallon water heaters, new ceiling fans, new satin finish elastomeric exterior paint designed for block and stucco, a new large storage building and new parking spaces, privacy fences and walkways. 220 volt added to the oversized 2 car garage for EV use. Units A & B are each 1BR/1BA approx. 750sf with a shared laundry with tons of storage and workout room between the 2 units. Unit C is 2BR/2BA with own laundry. Enjoy breathtaking sunsets on your private patio surrounded by natural landscaping and wildlife. Fully fenced with 3 entrances, RV/boat parking and plenty of room for all your toys. Experience the rural lifestyle and wonderful Vista climate with restaurants, hiking, shopping entertainment, pickleball at Brengle Terrace and so much more!
中文描述選擇基本情況, 幫您快速計算房貸
除了房屋基本信息以外,CCHP.COM還可以為您提供該房屋的學區資訊,周邊生活資訊,歷史成交記錄,以及計算貸款每月還款額等功能。 建議您在CCHP.COM右上角點擊註冊,成功註冊後您可以根據您的搜房標準,設置“同類型新房上市郵件即刻提醒“業務,及時獲得您所關注房屋的第一手資訊。 这套房子(地址:2068 Camino Culebra Vista, CA 92084)是否是您想要的?是否想要預約看房?如果需要,請聯繫我們,讓我們專精該區域的地產經紀人幫助您輕鬆找到您心儀的房子。