485 S 8 Th St,
Shandon, CA 93461
在售房 $675,000 ($67.5萬)
卧室: 1 浴室: 1 / 其他類型
房屋信息

其他類型

700平方英呎
(65平方米)

435600 平方英呎
(40,469平方米)

1992 年

1

2 停車位

冷: DUC,ELC,SEE

暖: DUC,ELC

2025年09月24日
已上市 227 天

地產編號: SC25224404
所處郡縣: SL
建築風格: SEE
面積單價:$964.29/sq.ft ($10,380 / 平方米)
家用電器:EO,ER,EWH
車位類型:DYLL,RV,RVC,RA,RVH,SEE
房屋簡介

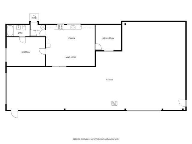
Welcome to this versatile barndominium-style property set on 10 flat, fully fenced acres within walking distance to town in Shandon. The centerpiece is a 3,000± sq. ft. enclosed agricultural building featuring two roll-up doors, allowing for indoor RV parking with full water and septic hookups. Inside, you’ll find a beautiful 700+- sq. ft. apartment complete with a full kitchen, living room, bedroom, full bathroom, bonus room, mudroom and washer/dryer hookups. Perfect for comfortable living while you build your dream home, host guests, or enjoy as a private retreat. The property is well-equipped with two wells, one delivering approximately 14 GPM into a 5,000-gallon storage tank with booster pump, plus a second well located on the opposite side of the property - ideal if the next owner chooses to subdivide or use as a back up. Whether you envision agriculture, equestrian use, equipment storage, or a future home build, this property offers incredible flexibility. Conveniently located just steps from Shandon schools, park, market, and only a 24-minute drive to downtown Paso Robles. Special lending options available!

中文描述

選擇基本情況, 幫您快速計算房貸

$
$
%
%
查看更多利率
每月還款額:
參考首付:
利息總金額:
剩餘總金額:
花费總金額:
查看更多贷款信息
想要看房?
聯繫客服: