1124 7th St,
Santa Monica, CA 90403
在售房 $3,740,000 ($374萬)
卧室: 2 浴室: 2 / 獨立屋
房屋信息

獨立屋

1256平方英呎
(117平方米)

7513 平方英呎
(698平方米)

1907 年

0

4 停車位

暖: NO

2025年05月19日
已上市 155 天

地產編號: 25541433
所處郡縣: LA
面積單價:$2977.71/sq.ft ($32,052 / 平方米)
家用電器:NO
車位類型:COVP,GDO,GA
所屬高中:

所屬初中:

所屬小學:
房屋簡介

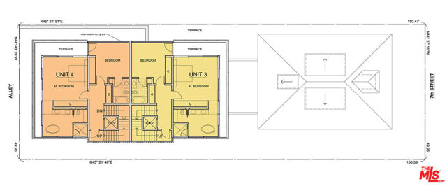
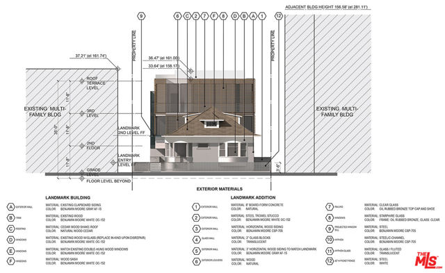
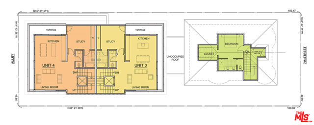
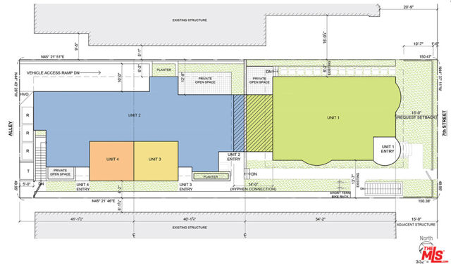
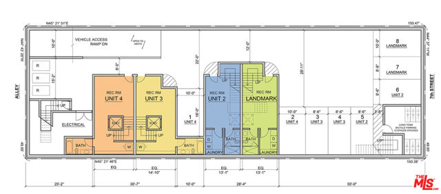
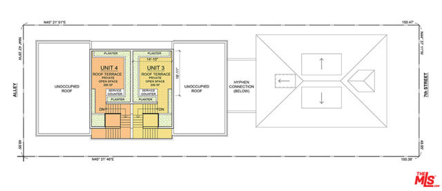
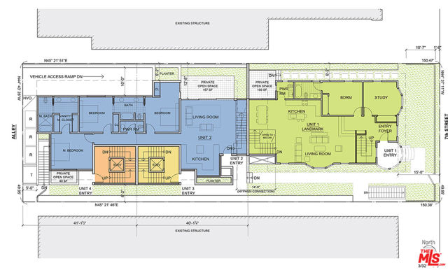
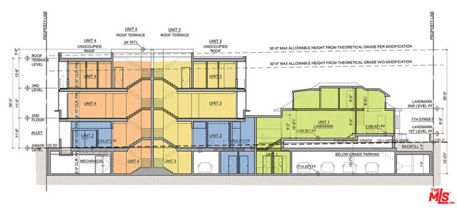
Unbeatable location in the heart of Santa Monica! This exceptional development site comes with an APPROVED Vesting Tentative Map and has already received clearance from the Historical Board ready for your building permit. Plans call for four spacious townhomes, each approximately 2,500 sq ft with 2 bedrooms, 2 bathrooms, a bonus room, and private 2-car parking. An outstanding chance to build in one of LA's most desirable coastal neighborhoods, just minutes from the beach, top-tier shopping, dining, and everything Santa Monica has to offer. Approved architectural plans are available to qualified buyers upon request.

中文描述

選擇基本情況, 幫您快速計算房貸

$
$
%
%
查看更多利率
每月還款額:
參考首付:
利息總金額:
剩餘總金額:
花费總金額:
查看更多贷款信息
想要看房?
聯繫客服: