4617 Idaho St,
San Diego, CA 92116
在售房 $2,650,000 ($265萬)
卧室: -- 浴室: -- / 其他類型
房屋信息

其他類型

3492 平方英呎
(324平方米)

2023 年

3

3 停車位

暖: HP,DUC

2025年09月15日
已上市 236 天

地產編號: PTP2507053
所處郡縣: SD
面積單價:$646.34/sq.ft ($6,957 / 平方米)
房屋簡介

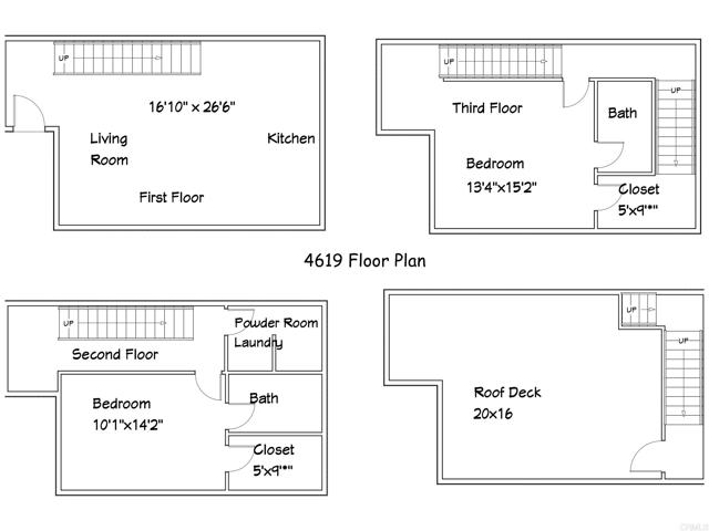
Luxury Living Meets Investment Opportunity. A rare chance to own a 4100sf modern trophy property in one of San Diego’s most desirable areas in North Park. Live in one residence, lease the others, or maximize returns while enjoying stable, high-end rental income. This impressive triplex includes (2) 2 Bed, 2.5 Bath units and (1) 2BD/2BA unit. Every residence features off-street parking with EV charging, paid solar, private rooftop decks with panoramic views, laundry rooms, oversized walk-in closets, and abundant storage. Interiors showcase luxury finishes; LVP flooring, quartz countertops, designer tile, spa-inspired baths with frameless shower enclosures, and custom lighting. The flexible layouts suit live/work lifestyles, long or mid-term rentals. All this in a thriving, historic neighborhood just moments from San Diego’s best dining, culture, and coastal access. An exceptional opportunity to combine lifestyle and investment in one property. Units are occupied. Drive by only, please do not disturb tenants.

中文描述

選擇基本情況, 幫您快速計算房貸

$
$
%
%
查看更多利率
每月還款額:
參考首付:
利息總金額:
剩餘總金額:
花费總金額:
查看更多贷款信息
想要看房?
聯繫客服: