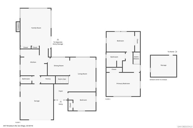
4417 Braeburn Rd,
San Diego, CA 92116
在售房 $1,575,000 ($157.5萬)
卧室: 3 浴室: 1.5 / 獨立屋
房屋信息

獨立屋

2200平方英呎
(204平方米)

10999 平方英呎
(1,022平方米)

1948 年

2

4 停車位

冷: NO

暖: GAS,FA

2025年10月09日
已上市 68 天

地產編號: 250041195SD
所處郡縣: SD
面積單價:$715.91/sq.ft ($7,706 / 平方米)
車位類型:DY,GAR
房屋簡介

Something special is tucked away in North Kensington… Quiet canyon, classic charm, and big views! Privately perched along a tranquil canyon rim on Braeburn Rd, this 1948 gem sits on a peaceful cul-de-sac. Featuring 3 bedrooms, 2 bathrooms, solar panels, and a bonus family room, it offers that rare mix of character and comfort. Sweeping canyon vistas create a seamless connection to nature while still keeping you just moments from the lively buzz of Adams Avenue. Inside, natural light pours through every window, highlighting the original hardwood floors and classic details. The remodeled kitchen—complete with black-and-white checkered floors—flows gracefully into the grand living room, where the real views steal the show. It’s the perfect spot for quiet morning coffee or effortless entertaining. Step outside and the magic continues. Terraced patios give you multiple spaces to relax or host friends, plus there’s even bonus storage tucked below. A rare opportunity to own one of Kensington’s most picturesque canyon homes—where timeless character meets serene, natural beauty among the trees.

中文描述

選擇基本情況, 幫您快速計算房貸

$
$
%
%
查看更多利率
每月還款額:
參考首付:
利息總金額:
剩餘總金額:
花费總金額:
查看更多贷款信息
想要看房?
聯繫客服: