3777 Poe St,
San Diego, CA 92107
交易中 $1,555,000 ($155.5萬)
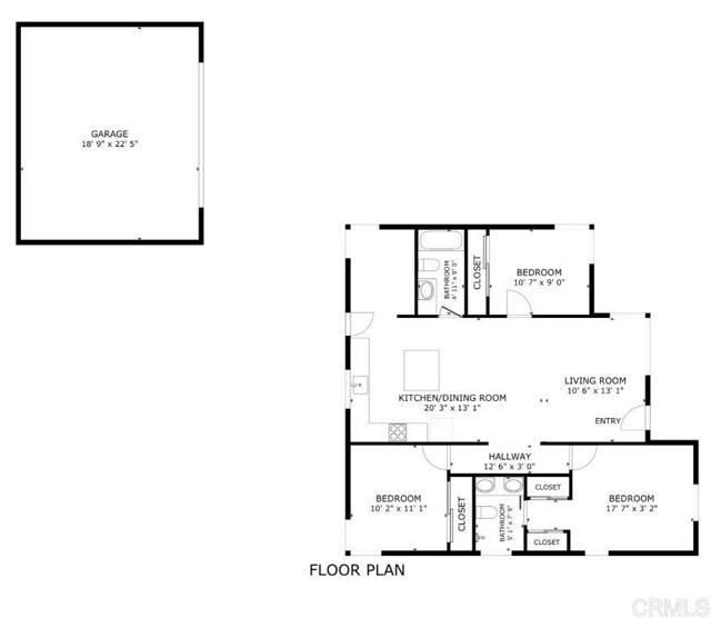
卧室: 3 浴室: 2 / 獨立屋
房屋信息

獨立屋

1126平方英呎
(105平方米)

6300 平方英呎
(585平方米)

1949 年

1

5 停車位

冷: CA,ELC,HE

暖: CF,FA

2025年10月24日
已上市 197 天

地產編號: PTP2508077
所處郡縣: SD
面積單價:$1380.99/sq.ft ($14,865 / 平方米)
車位類型:GA,DY,DCON,FEG,OFFS
房屋簡介

COMPLETELY REMODELED 3BR/2BA HOME IN HIGHLY DESIRABLE POINT LOMA HEIGHTS, JUST 1 MILE FROM SUNSET CLIFFS. BRIGHT OPEN LAYOUT WITH OCEAN BREEZES, SLEEK KITCHEN PERFECT FOR ENTERTAINING, AND A LARGE ENCLOSED BACKYARD WITH BUILT-IN WOOD FIREPLACE. RARE 2-CAR GARAGE WITH LONG DRIVEWAY. BEAUTIFULLY LANDSCAPED FRONT YARD WITH MATURE TREES. ENJOY QUIET WALKS WHILE BEING CLOSE TO LOCAL CAFÉS, YOGA STUDIOS, AND OB’S VIBRANT DINING SCENE. A PERFECT BLEND OF COMFORT, CONVENIENCE, AND TRUE COASTAL LIVING — LESS THAN 1.5 MILES TO THE 8 & 5 FREEWAYS!

中文描述