214 Via Robina Unit 5,
San Clemente, CA 92672
在售房 $729,900 ($73萬)
卧室: 2 浴室: 1.75 / 康斗
房屋信息

康斗

1016平方英呎
(94平方米)

1016 平方英呎
(94平方米)

1970 年

$435/月

1

1 停車位

冷: NO

暖: CF,FA

2025年09月25日
已上市 21 天

地產編號: OC25225057
所處郡縣: OR
建築風格: CNT
面積單價:$718.41/sq.ft ($7,733 / 平方米)
家用電器:DW,GO,GR,MW,RF
所屬初中:

房屋簡介

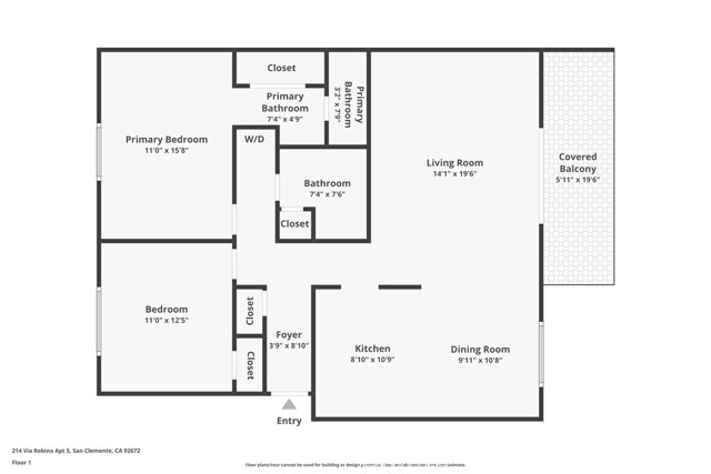
214 Via Robina #5 presents a stylishly renovated condo in the hills of San Clemente with inviting indoor spaces and relaxing views from the upgraded floating floor deck. Two bedrooms, two bathrooms and one car garage located on large cul-de-sac. The showpiece kitchen features modern Shaker cabinetry with CB2 matte black hardware, a handmade Zellige Moroccan tile backsplash with tight grout lines for sheer beauty, and granite countertops with a deep double sink. A suite of Samsung Bespoke matte black appliances, accented with white glass fronts, includes a five-burner gas range with oven, coordinating refrigerator, microwave and dishwasher. A raised ceiling with recessed lighting and an adjacent built-in banquette with custom cushions create a warm, functional dining space ideal for gatherings of up to 10–12. Both bathrooms have been elevated with designer mirrors, the primary featuring timeless marble flooring and the hall bathroom showcasing large-format porcelain floors and custom shelving. Throughout the home, brushed European oak engineered wood floors, finished with polyurethane for durability and beauty, add richness. Additional details include 4-inch crown molding, six-panel doors, and textured cut-pile carpet in the bedrooms. Each bedroom also offers a matte black ceiling fan for style and comfort. Other highlights include a central heater (installed 2016), dual-pane windows, custom built-in Shaker-style entertainment cabinetry in the living room, and a full-size stacked washer/dryer. For leasure enjoy the HOA common area garden for residents and common area patio with coastal and ocean views! This thoughtfully upgraded residence combines craftsmanship, comfort, and design — all within minutes of San Clemente’s beaches, shops, and restaurants.

中文描述

選擇基本情況, 幫您快速計算房貸

$
$
%
%
查看更多利率
每月還款額:
參考首付:
利息總金額:
剩餘總金額:
花费總金額:
查看更多贷款信息
想要看房?
聯繫客服: