623 Cameo Dr,
Palm Springs, CA 92264
在售房 $157,500 ($15.8萬)
卧室: 2 浴室: 1.5 / 其他類型
房屋信息

其他類型

900平方英呎
(84平方米)

1967 年

1

冷: WW

暖: WL

2025年10月09日
已上市 212 天

地產編號: 219136712DA
所處郡縣: RI
面積單價:$175.00/sq.ft ($1,884 / 平方米)
家用電器:DW,RF,GO,GD,GWH,WHU
車位類型:CPA,COVP
房屋簡介

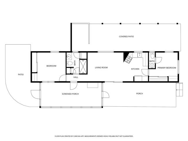
Welcome to Parkview - A Premier 55+ Community in South Palm Springs.Discover the serenity of desert living at Parkview, a vibrant community nestled beside the protected Oswit Land Trust and just steps from the scenic South Lykken Trailhead. Surrounded by breathtaking mountain views, Parkview offers the perfect blend of tranquility and convenience--only minutes from downtown Palm Springs' renowned restaurants, museums, and boutique shopping.This 2-bedroom, 2-bathroom home is ready for your personal touch. Highlights include a screened-in patio, a peaceful back patio with mature landscaping, and ample space for entertaining or just relaxing.No short- or long-term rentals allowedBuyer approval by park management is required.Current land lease expires in 2027; after which, the park will be operated by the owners and park manager.Don't miss this unique opportunity to create your dream home in one of South Palm Springs' most desirable 55+ communities.

中文描述

選擇基本情況, 幫您快速計算房貸

$
$
%
%
查看更多利率
每月還款額:
參考首付:
利息總金額:
剩餘總金額:
花费總金額:
查看更多贷款信息
想要看房?
聯繫客服: