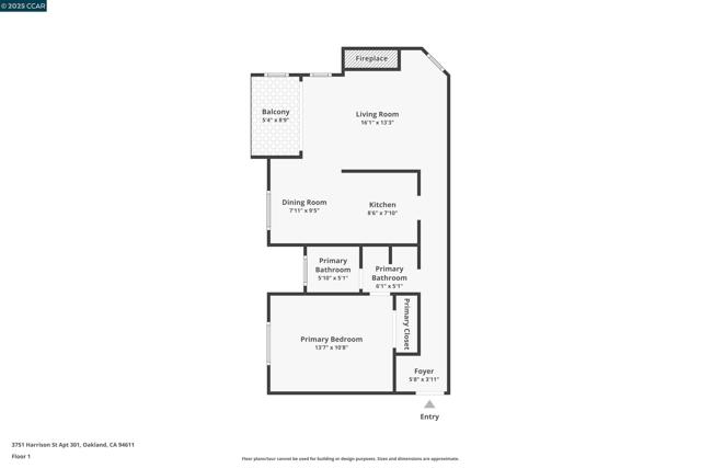
3751 Harrison Street Unit 301,
Oakland, CA 94611
在售房 $379,000 ($37.9萬)
卧室: 1 浴室: 1 / 康斗
房屋信息

康斗

641平方英呎
(60平方米)

5625 平方英呎
(523平方米)

1972 年

$605/月

1 停車位

暖: ELC

2025年10月07日
已上市 41 天

地產編號: 41113974
所處郡縣: ALA
建築風格: CNT
面積單價:$591.26/sq.ft ($6,364 / 平方米)
車位類型:COVP,GDO
房屋簡介

Step inside this beautifully updated top-floor condo! This sun-drenched, light and bright 1 bed, 1 bath condo showcases luxury throughout and seamlessly blends comfort with style. Experience elegance in every detail—from the exquisite wabi-sabi ceiling light to the stunning gold fixtures, sparkling laminate floors by Bannerman that add a touch of glamour. Delight in the modern kitchen featuring quartz countertops, redwood maple veneer cabinetry coated in captivating white and blue hues, and top-of-the-line stainless steel appliances, perfect for inspired cooking. The fully renovated bathroom is a spa-like retreat with a lighted mirror and sleek gold finishes, complemented by electric portable heaters for cozy comfort. Ambiance is effortlessly controlled with dimmers on the warm lighting throughout the unit. New efficient windows flood the space with natural light while ensuring tranquility. Step onto your private balcony to savor your morning coffee or unwind as you admire the neighborhood views. Enjoy secure parking in a gated underground garage, with easy access to Kaiser, BART, Lake Merritt, restaurants, parks and shopping. This stunning condo is a rare gem that perfectly balances modern luxury and practical living — a must-see opportunity to make your dream home a reality.

中文描述

選擇基本情況, 幫您快速計算房貸

$
$
%
%
查看更多利率
每月還款額:
參考首付:
利息總金額:
剩餘總金額:
花费總金額:
查看更多贷款信息
想要看房?
聯繫客服: