土地
546678 平方英呎
(50,788平方米)
$2,200/月
2025年05月02日
已上市 372 天
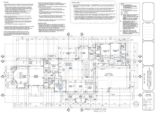
Welcome to the extraordinary opportunity of a lifetime — your multimillion-dollar dream home project awaits! Nestled in the breathtaking, magnificent equestrian countryside of La Cresta, this remarkable 12.55-acre parcel of vacant land boasts spectacular mountain and valley views that will inspire you every day. With approved architectural plans already in place, you can build your piece of paradise without the hassle and financial strain of preliminary preparations! Conveniently located just minutes from the I-15, you will find yourself surrounded by brand new shopping centers, major retailers, state-of-the-art healthcare facilities, and an array of entertainment options. Experience the thrill of nearby water parks, serene lakes, exhilarating water sports, and even skydiving adventures, all contributing to a vibrant lifestyle! The groundwork for your dream home has already been laid, with rough grading completed and essential utilities, including electrical and water lines on the property. Imagine a stunning abode featuring a 5-bedroom, 5-bathroom open floor plan, complete with private retreats outside each bedroom. The proposed home plans encompass a generous 3,540 square feet of living space, complemented by a 467 square foot covered patio and a charming 293 square foot porch. Indulge your passion for wine with the dedicated wine cellar, where you can curate a collection from the fruits of your land or select from the exquisite varieties crafted in nearby Temecula wine country. Designed with culinary enthusiasts in mind, the main kitchen beckons master chefs, while an additional butler's kitchen caters to all your entertaining needs. The expansive 961 square foot A 3-car garage features a designated space for a small RV and ample room for a workshop or hobby setup — a dream come true for any enthusiast! The property offers gently sloping areas with endless possibilities for further development, including a barn, workshop, or even a second unit. Additionally, the seller has secured preliminary approval to subdivide the land into two distinct parcels, allowing construction of two entirely separate homes, each with its own additional unit. This subdivision can be pursued while you focus on building your primary residence. Seize the moment and reach out to the agent for a detailed set of plans, reports, or any questions you may have. Your dream home awaits!
中文描述選擇基本情況, 幫您快速計算房貸
除了房屋基本信息以外,CCHP.COM還可以為您提供該房屋的學區資訊,周邊生活資訊,歷史成交記錄,以及計算貸款每月還款額等功能。 建議您在CCHP.COM右上角點擊註冊,成功註冊後您可以根據您的搜房標準,設置“同類型新房上市郵件即刻提醒“業務,及時獲得您所關注房屋的第一手資訊。 这套房子(地址:18346 Vista De Montanas Murrieta, CA 92562)是否是您想要的?是否想要預約看房?如果需要,請聯繫我們,讓我們專精該區域的地產經紀人幫助您輕鬆找到您心儀的房子。