土地
70567 平方英呎
(6,556平方米)
無
2025年08月19日
已上市 241 天
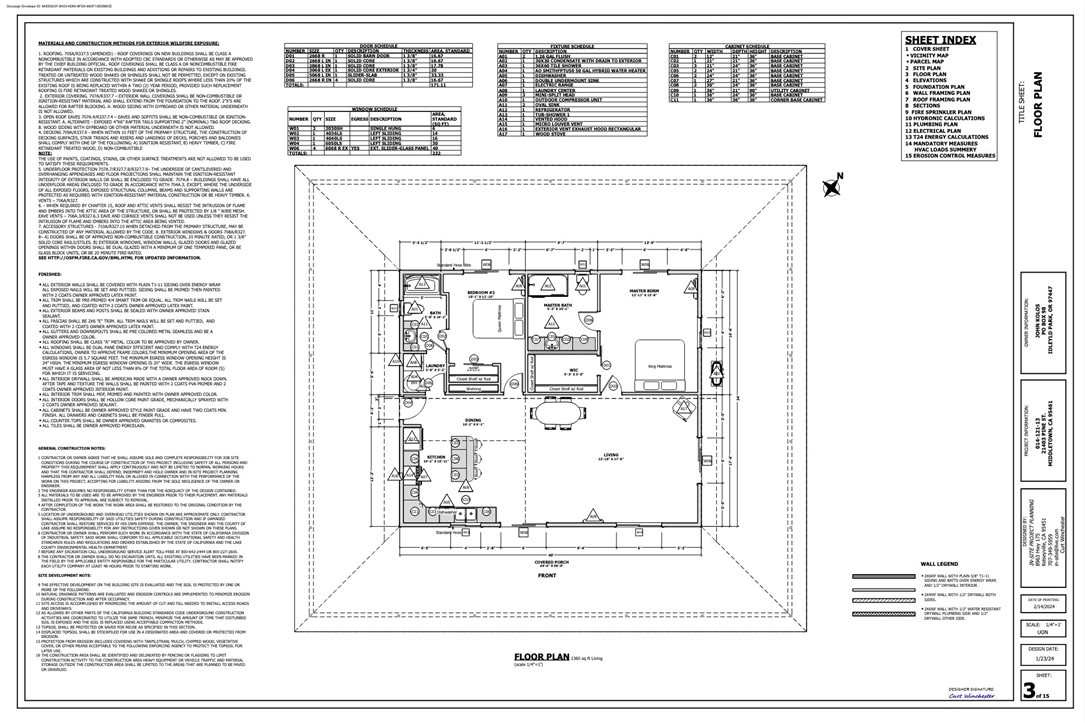
Build your dream ranch home with this fully fenced 1.62-acre parcel in Middletown. Foundation is already in and building permits are active. Zoned SR for a multitude of uses, this property is ideal for creating your dream garden, horse ranch, or farm, where you can cultivate fresh produce and sell it at your very own farm stand, complete with eggs from your chicken coop. Hook-ups for RV or fifth wheel. The sale includes a complete set of paid approved plans and active permits for a 1,360 sq ft, 2-bed, 2-bath house. The foundation is already in and ready to continue building. Whether you envision a thriving garden, a bustling farm, or a peaceful homestead, this versatile property offers endless possibilities. Embrace the opportunity to create a sustainable and fulfilling lifestyle. Don’t miss out on this unique chance to turn your dreams into reality!
中文描述選擇基本情況, 幫您快速計算房貸
除了房屋基本信息以外,CCHP.COM還可以為您提供該房屋的學區資訊,周邊生活資訊,歷史成交記錄,以及計算貸款每月還款額等功能。 建議您在CCHP.COM右上角點擊註冊,成功註冊後您可以根據您的搜房標準,設置“同類型新房上市郵件即刻提醒“業務,及時獲得您所關注房屋的第一手資訊。 这套房子(地址:21403 Pine St Middletown, CA 95461)是否是您想要的?是否想要預約看房?如果需要,請聯繫我們,讓我們專精該區域的地產經紀人幫助您輕鬆找到您心儀的房子。