獨立屋
558平方英呎
(52平方米)
2885 平方英呎
(268平方米)
1924 年
無
1
2 停車位
2025年10月03日
已上市 128 天
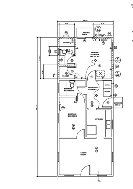
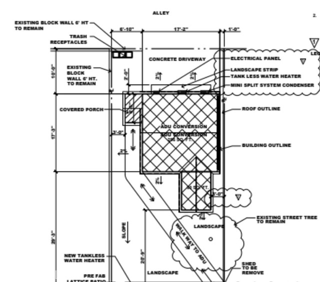
Welcome to 125 E 68th Way, a charming and cozy 1-bedroom, 1-bath home featuring a bonus room that is ideal for a second bedroom, home office, or den. This home is perfect as a starter home or an investment property, combining functionality with great potential. A two-car detached garage is located at the rear of the property with convenient alley access, offering an exciting opportunity for conversion into an Accessory Dwelling Unit (ADU) to add long-term value. ADU plans and permitted additions for a master suite are included with the sale. Please call / Text for details.
中文描述選擇基本情況, 幫您快速計算房貸
除了房屋基本信息以外,CCHP.COM還可以為您提供該房屋的學區資訊,周邊生活資訊,歷史成交記錄,以及計算貸款每月還款額等功能。 建議您在CCHP.COM右上角點擊註冊,成功註冊後您可以根據您的搜房標準,設置“同類型新房上市郵件即刻提醒“業務,及時獲得您所關注房屋的第一手資訊。 这套房子(地址:125 E 68th Wy Long Beach, CA 90805)是否是您想要的?是否想要預約看房?如果需要,請聯繫我們,讓我們專精該區域的地產經紀人幫助您輕鬆找到您心儀的房子。