土地
764806 平方英呎
(71,053平方米)
無
2024年12月03日
已上市 520 天
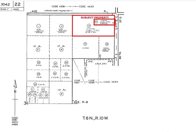
SIGNALIZED CORNER!!! Two (2) parcels of vacant land comprised together to total ±17.55ac situated at the southwest corner of 90th Street East & East Avenue R in the unincorporated community of Sun Village east of Palmdale within Los Angeles County. Sun Village connects with the communities of Littlerock and Lake Los Angeles and is often referred to as The Antelope Valley Area. This land is just half a mile south of E Palmdale Blvd across the street from Jackie Robinson Park. Hwy 138 is roughly 1.7 miles south of this site. Zoning is currently A-1 (Light Agricultural) and designated as RL1 (Rural Land 1). Both parcels are adjacent to M-2/M-1.5 parcels to the south, and in proximity to Rural Commercial Zone to the east, with this said there may be potential for a rezone. Excellent opportunity to invest in an up and coming community.
中文描述選擇基本情況, 幫您快速計算房貸
除了房屋基本信息以外,CCHP.COM還可以為您提供該房屋的學區資訊,周邊生活資訊,歷史成交記錄,以及計算貸款每月還款額等功能。 建議您在CCHP.COM右上角點擊註冊,成功註冊後您可以根據您的搜房標準,設置“同類型新房上市郵件即刻提醒“業務,及時獲得您所關注房屋的第一手資訊。 这套房子(地址:0 E 90th St Littlerock, CA 93543)是否是您想要的?是否想要預約看房?如果需要,請聯繫我們,讓我們專精該區域的地產經紀人幫助您輕鬆找到您心儀的房子。