507 Longwood Ct,
Hayward, CA 94541
交易中 $818,000 ($81.8萬)
卧室: 3 浴室: 1 / 獨立屋
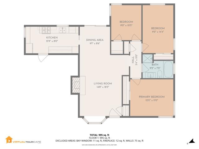
房屋信息

獨立屋

1025平方英呎
(95平方米)

10266 平方英呎
(954平方米)

1951 年

1

2 停車位

暖: WL

2025年10月31日
已上市 166 天

地產編號: ML82026465
所處郡縣: ALA
面積單價:$798.05/sq.ft ($8,590 / 平方米)
家用電器:DW,GD,RF
房屋簡介

Beautifully remodeled single-level home on a rare 10,266 sq ft lot tucked in a quiet Hayward cul-de-sac. Inside, enjoy bright open living with newer flooring, fresh paint, and a cozy fireplace in the spacious living room. The updated kitchen features white shaker cabinets, quartz countertops, stainless-steel appliances, and a gas range ideal for high-heat cooking. The dining area opens to a large patio and backyard, ideal for outdoor entertaining or future expansion. Three light-filled bedrooms and a remodeled bath with soaking tub and separate stall shower complete the interior. The expansive lot offers endless possibilities: add an ADU for multigenerational living, rental income, or a home office, or create lifestyle amenities such as a pool or sports court. Zoned RL (Low Density Residential), the property may allow a second home, duplex, or triplex configuration under city guidelines. Buyer to verify all zoning and ADU potential with the City of Hayward. Conveniently located near I-880, BART, Southland Mall, Skywest Commons, and Kennedy Park, one of Haywards most popular free public parks.

中文描述