1514 Via Del Rio,
Corona, CA 92882
交易中 $549,900 ($55萬)
卧室: 3 浴室: 1.75 / 聯排別墅
房屋信息

聯排別墅

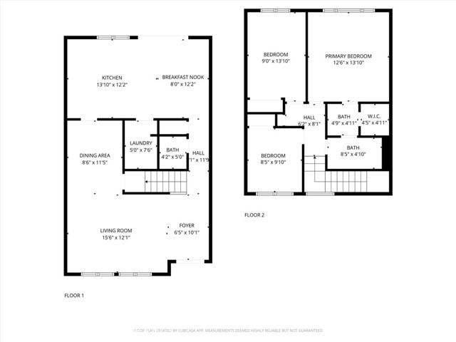
1495平方英呎
(139平方米)

1400 平方英呎
(130平方米)

1977 年

$400/月

2

2 停車位

冷: CA

暖: CF

2025年10月09日
已上市 229 天

地產編號: OC25236757
所處郡縣: RI
面積單價:$367.83/sq.ft ($3,959 / 平方米)
房屋簡介

Welcome to 1514 Via Del Rio, a beautifully updated 3-bedroom, 1.5-bath townhome offering nearly 1,500 square feet of stylish living space in the heart of Corona. This home has been thoughtfully upgraded with brand new flooring, baseboards, fresh paint, and remodeled powder bath in 2025. The bright living room flows into the dining area and modernized kitchen, which boasts updated cabinets, countertops, sink, recessed lighting, and stainless steel appliances installed in 2022. Sliding glass doors open to a private patio with a newer vinyl fence (2023) and low-maintenance artificial grass (2023), perfect for relaxing or entertaining outdoors. Recent improvements provide peace of mind, including double-pane windows and sliding door (2014), A/C and ducting (2014), water heater (2017), whole-house hot and cold repipe with updated regulator (2024), garage door with opener and track (2021), keyless front entry lock (2025), updated window coverings (2022), fire detectors (2023), and recently replaced toilets (2025). Beyond the home itself, residents enjoy a welcoming HOA community that hosts year-round activities such as holiday decoration contests, a Christmas holiday boat parade, summer movie nights, the annual pool opening meet-and-greet, and opportunities for lake fishing and paddle boating. Conveniently located near shopping, dining, and entertainment with quick access to the 91 and 15 freeways, and within the Coronita Elementary, Letha Raney Intermediate, and Corona High School boundaries, this property offers the perfect combination of comfort, upgrades, and community lifestyle.

中文描述