1814 Roth,
Chico, CA 95928
在售房 $515,000 ($51.5萬)
卧室: 3 浴室: 3 / 獨立屋
房屋信息

獨立屋

1774平方英呎
(165平方米)

3485 平方英呎
(324平方米)

2003 年

2

2 停車位

冷: CA

暖: CF

2025年11月07日
已上市 200 天

地產編號: SN25256018
所處郡縣: BUT
建築風格: CRF
面積單價:$290.30/sq.ft ($3,125 / 平方米)
家用電器:DW,GD,GO,GR,RF,WHU
車位類型:GAR
房屋簡介

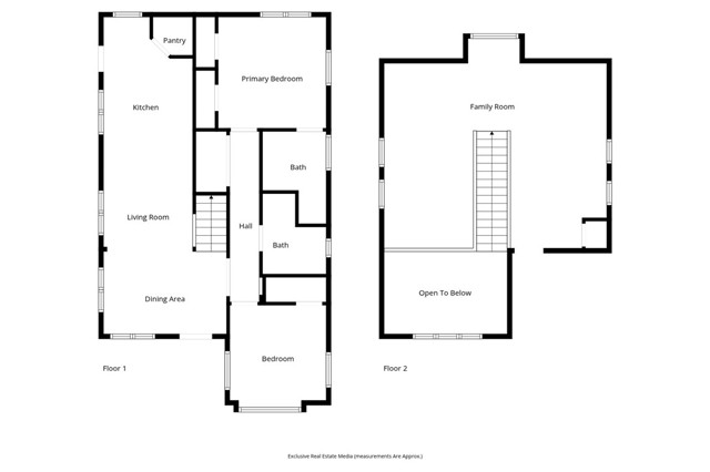
Adorable home in the highly sought-after Doe Mill neighborhood! This charming property offers not one, but two living spaces—a 2-bedroom, 2-bathroom main home with a loft, plus a 430 sq. ft. carriage studio above the detached 2-car garage. The main home welcomes you with an inviting front porch, perfect for morning coffee or chatting with neighbors. Inside, you’ll find a bright and open living area with high ceilings that flow into the cheerful kitchen, creating a comfortable and airy space. The primary suite is conveniently located downstairs and includes its own en-suite bathroom, while the guest bedroom and second bathroom are also on the main level. Upstairs, you’ll find a large loft—perfect for an office, additional living room, or even a guest bedroom. Other interior features include new carpet, fresh paint and designer light fixtures throughout. Step outside to a spacious backyard, ideal for entertaining, gardening, or play. Above the detached garage, the carriage studio offers a roomy living/sleeping area, full kitchen, and private bathroom—an excellent setup for guests, extended family, or potential rental income. It even includes its own private parking spot next to the garage and separate electric meters for added convenience. Located in one of Chico’s most beloved neighborhoods, you’ll love the tree-lined streets, beautiful landscaping, and neighborly feel of Doe Mill. Plus, you’re just moments from Meriam Park, scenic bike paths, restaurants, and local shops. This home is the perfect blend of charm, functionality, and community living!

中文描述

選擇基本情況, 幫您快速計算房貸

$
$
%
%
查看更多利率
每月還款額:
參考首付:
利息總金額:
剩餘總金額:
花费總金額:
查看更多贷款信息
想要看房?
聯繫客服: