263 Coble Dr,
Cathedral City, CA 92234
在售房 $124,500 ($12.4萬)
卧室: 2 浴室: 1.75 / 其他類型
房屋信息

其他類型

1512平方英呎
(140平方米)

1550 平方英呎
(144平方米)

1987 年

1

冷: CA

暖: CF,FA

2025年08月23日
已上市 240 天

地產編號: 219134356DA
所處郡縣: RI
面積單價:$82.34/sq.ft ($886 / 平方米)
家用電器:RF,MW,GR,GO,GD,GS,DW,GWH
車位類型:CPA,GU
房屋簡介

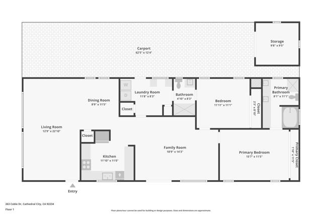
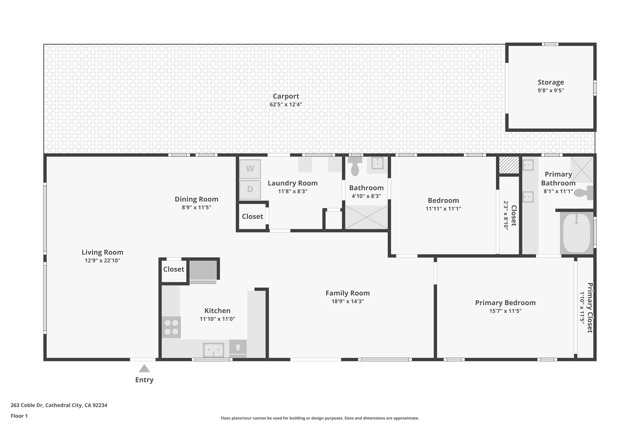
Welcome home to this beautiful 2 bedroom, 2 bath manufactured home offering over 1,500 sq. ft. of comfortable living, ideally situated on a desirable corner lot in a highly desired, welcoming senior (55+), owner-occupied (no rentals) park community, The Canyon. The open and airy floor plan is filled with natural light, creating a warm and inviting atmosphere throughout. Generous living, dining area, and den flow seamlessly, making it easy to relax or entertain, while the well-designed laundry room with extra cabinetry adds everyday convenience. Outside, you'll appreciate the two-car covered carport, a separate storage unit for tools, bikes, or seasonal items, and a spacious covered patio that provides the perfect spot to enjoy your morning coffee or take in the evening's western sunsets. This resident-owned community offers a lifestyle centered on comfort and connection. Enjoy resort-style amenities including sparkling pools and large soothing spa, year-round heated and cooled shuffleboard courts, billiards, card room, fitness room, tennis and pickleball courts, and a beautifully updated clubhouse that hosts a wide variety of social activities and events. With the added privacy of a corner lot, the benefit of an additional storage unit, ample guest parking, and the peace of mind of an owner-only community, this home combines comfort and convenience to provide the buyer with an ideal opportunity to embrace desert living at its finest. Potential residents of The Canyon will be asked to show a credit score of 750 and a monthly income of three (3) times the average monthly space rent of $945. Pets are permitted; dogs need to be under 20 lbs, unless it has a service dog certification. Other information is available Mon-Fri from the office located in The Canyon. Monthly space rent/lease is $945 per month + Utilities. Commercial Land Lease - Expires 2040.

中文描述

選擇基本情況, 幫您快速計算房貸

$
$
%
%
查看更多利率
每月還款額:
參考首付:
利息總金額:
剩餘總金額:
花费總金額:
查看更多贷款信息
想要看房?
聯繫客服: