824 El Camino Real,
Burlingame, CA 94010
在售房 $1,999,999 ($200萬)
卧室: -- 浴室: -- / 其他類型
房屋信息

其他類型

2592平方英呎
(241平方米)

5525 平方英呎
(513平方米)

1937 年

2

3 停車位

冷: CA

2025年05月04日
已上市 174 天

地產編號: ML82005442
所處郡縣: SM
面積單價:$771.60/sq.ft ($8,305 / 平方米)
車位類型:COVP
房屋簡介

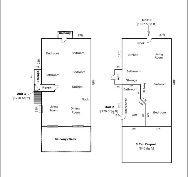
Exceptional Multi-Unit Investment in Prime Burlingame Location Welcome to 824 El Camino Real a rare opportunity to own a fully leased triplex in the heart of Burlingame. This well-maintained property offers three income-producing units, each with strong rental demand, separate utilities, and on-site parking. Located just blocks from transit, shops, dining, and major commuter routes, this asset combines consistent cash flow with long-term appreciation potential. Whether youre looking to expand your portfolio, complete a 1031 exchange, or explore owner-occupancy with income offset, this property checks all the boxes. The layout, condition, and location make it ideal for both seasoned investors and first-time multi-unit buyers. Dont miss this rare chance to secure a high-performing asset in one of the Peninsulas most sought-after markets.

中文描述

選擇基本情況, 幫您快速計算房貸

$
$
%
%
查看更多利率
每月還款額:
參考首付:
利息總金額:
剩餘總金額:
花费總金額:
查看更多贷款信息
想要看房?
聯繫客服: