3011 N Buhach Rd,
Atwater, CA 95301
在售房 $895,000 ($89.5萬)
卧室: 4 浴室: 2 / 獨立屋
房屋信息

獨立屋

2813平方英呎
(261平方米)

43560 平方英呎
(4,047平方米)

2007 年

1

4 停車位

冷: CA

暖: CF,FIR

2025年09月26日
已上市 14 天

地產編號: MC25224568
所處郡縣: MER
面積單價:$318.17/sq.ft ($3,425 / 平方米)
家用電器:DW,GD,GER
房屋簡介

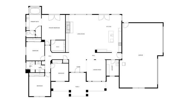
Luxury Meets Country in McSwain! Set on a full acre in one of McSwain’s most desirable neighborhoods, this beautifully refreshed 4-bedroom, 2-bathroom, 2,813 sq. ft. home combines modern comfort with wide-open country living. Recently updated with new interior paint, plush carpet, and fresh exterior paint, it offers a move-in ready feel in a peaceful setting tucked away from main traffic. Inside, you’ll find generous living spaces, including a separate formal dining room and multiple gathering areas filled with natural light. The soft neutral palette and flowing layout make this home as inviting as it is functional. A highlight for car lovers and hobbyists is the spacious 4-car garage, providing ample room for vehicles, storage, or workshop needs. Outdoors, the 1-acre lot offers endless possibilities—create your dream retreat with space for horses, 4H projects, a custom shop, or a sparkling pool. The newly landscaped front yard adds fresh curb appeal, while the expansive backyard is ready for your vision. Did I mention RV parking? Yes, we have RV parking! This is the best of both worlds: Luxury Meets Country—a refined home with the freedom to live your lifestyle.

中文描述

選擇基本情況, 幫您快速計算房貸

$
$
%
%
查看更多利率
每月還款額:
參考首付:
利息總金額:
剩餘總金額:
花费總金額:
查看更多贷款信息
想要看房?
聯繫客服: