1232 Devonshire Ln La Habra, CA 90631
- 獨立屋
- 1082 sqft(101平方米)
- 2
- 1.5
地產編號: PW25254228
售價
$635,000
來自機器翻譯
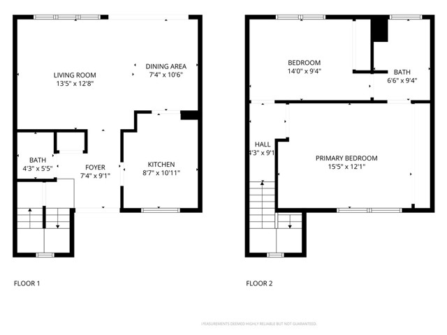
Now's your chance to live in the highly sought after Sunny Hills Village right here in the city of La Habra. As you enter the home you'll notice the natural light coming through the big living room windows and sliding glass door that leads to a private patio. Featuring beautiful walnut wood floors, this cozy living room is perfect for watching your favorite TV shows, reading, or just relaxing at home. You'll enjoy cooking in this updated functional kitchen. There is lots of counter space and more natural light coming from the over-the-sink-window that faces East. The kitchen features a brand new dishwasher, granite counters, shaker style cabinets, farmhouse sink, and lots of storage. Upstairs has a large primary bedroom with double door entry, full length mirrored closet, and direct access to the bathroom. This bathroom has lots of storage and can be accessed from both bedrooms. The second bedroom has a large window that faces West, an oversized closet that can hold all your clothes/accessories, and the same beautiful walnut wood floors that the living room has. Your private patio is perfect for BBQ, spending time with loved ones, gardening, or just relaxing after a long day of work. With direct access from the garage into both the home and patio, this property creates a smooth indoor-outdoor connection. Once you pull in and close the new garage door, the entire space is yours to enjoy in comfort and privacy.
The laundry hook ups are located in the garage with lots of storage. This community has so much to offer with a pool, playground, sport court and more. Don't miss out on an opportunity to live in this wonderful neighborhood.
詳細信息
- 社區費用(HOA): $309/月
- 建造年份: 1976 年
- 上市日期: 2025年11月05日 (已上市 170 天)
- 室內面積: 1082 平方英呎(實用面積:101平方米)
- 土地面積: 1700 平方英呎(158平方米)
- 房產現狀: Active
- 所處郡縣: OR
- 面積單價:$586.88/sq.ft ($6,317 / 平方米)
- 空調系統:CA FA
- 家用電器:DW,EO,ES,GD,MW,RF,TW,VEF
- 停車位: 2 停車位
- 車位類型:GAR,REG,SDG,GDO
- 所處學區: Model.SchoolDistrict
