2309 Saidel Dr Unit 2 San Jose, CA 95124
- 康斗
- 903 sqft(84平方米)
- 2
- 1
地產編號: 41113617
售價
$629,000




























































來自機器翻譯
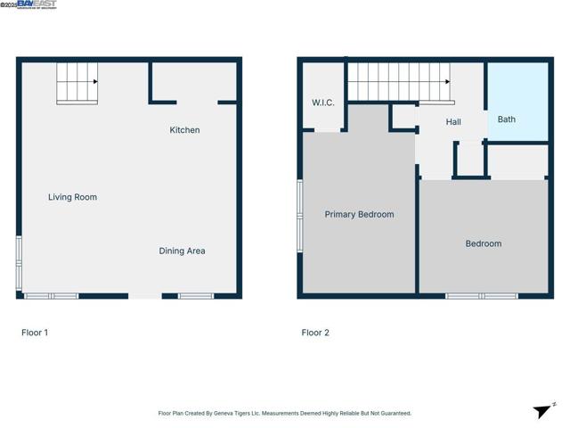
Finally — a home that checks all the boxes! Beautifully updated 2-bedroom condo in Cambrian, right on the Los Gatos & Campbell border. Step inside to fresh interior paint, brand-new stainless steel appliances, modern lighting, and stylish laminate flooring throughout — no carpet here! The renovated bathroom features a sleek vanity and glass shower door for a clean, modern finish. The spacious layout includes two large bedrooms, and the primary suite offers a serene view of mature trees plus a generous walk-in closet — your private retreat. Enjoy the convenience of in-unit laundry, tandem carport parking for 2 vehicles, and an oversized storage closet rarely found in condos. This unit is larger than most within the community and enjoys a prime location set among lush, manicured lawns. The HOA makes life simple by covering water, garbage, landscaping, and access to the sparkling pool. With top Cambrian schools, proximity to Good Samaritan Hospital, Hwy 85/17, local parks, and scenic trails, the location couldn’t be better. Whether you’re a first-time buyer, downsizing to a low-maintenance lifestyle, or investing in a high-demand neighborhood — this is the opportunity you don’t want to miss. Come see it and fall in love!
詳細信息
- 社區費用(HOA): $575/月
- 建造年份: 1973 年
- 上市日期: 2025年10月03日 (已上市 5 天)
- 室內面積: 903 平方英呎(實用面積:84平方米)
- 土地面積: 2580 平方英呎(240平方米)
- 房產現狀: Active
- 所處郡縣: SCL
- 面積單價:$696.57/sq.ft ($7,498 / 平方米)
- 空調系統:CA FA
- 停車位: 2 停車位
- 車位類型:CP